Modell 2

2-plansvilla Stallarholmen

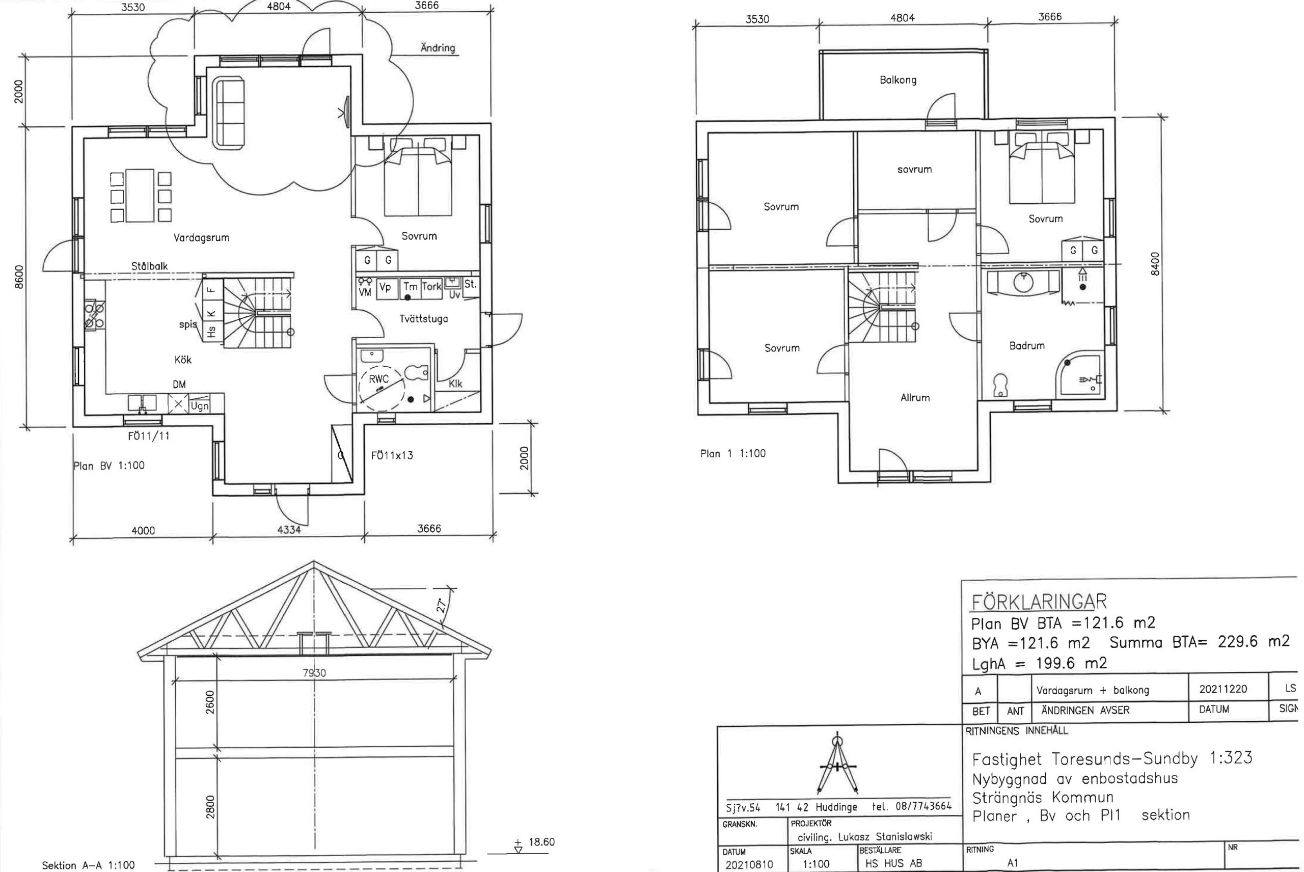
Modell 2 - BYA 121,6 kvm

Tvåplanshus

Modell 2

Ett hus om 200 kvm i två plan med öppen planlösning

Planlosning modell 2 121kvm - 200kvm