Modell 3

2-plansvilla Stallarholmen

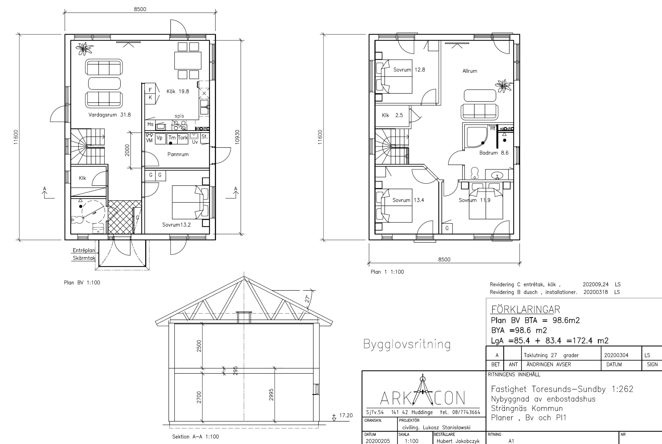
Modell 3 - BYA 98,6 kvm

Tvåplanshus 172 kvm

Modell 3

Ett hus om 172 kvm i två plan med ett sovrum på entréplan och tre sovrum samt ett allrum på övervåningen.

 

Planlosning modell 3